RESPONSABILIDAD Y COMPROMISO SON NUESTROS VALORES
En R2A CLIMATIZACIÓN
contamos con una gran experiencia realizando proyectos de climatización, tanto para particulares
como empresas. En nuestro interés por mejorar su bienestar y comodidad, abarcamos una gran variedad de servicios relacionados con la climatización.
Si desea un servicio personalizado, ajustado a su presupuesto y necesidades, no dude en contactar con nosotros para que le asesoraremos. Le proporcionaremos las distintas opciones de que dispone, respondiendo de manera EFICAZ y PROFESIONAL.
SERVICIOS
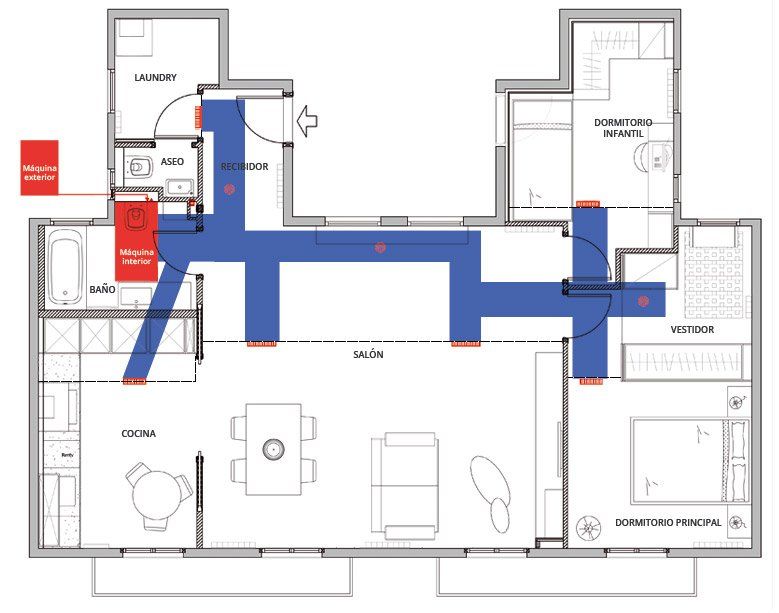
-Calculamos, diseñamos, instalamos y mantenemos instalaciones de aire acondicionado en su parte de frío y calor. Trabajamos todos los sistemas de climatización, tanto en vivienda existente como en nueva construcción: SPLIT, CONDUCTOS, CASSETTE, SUELO-TECHO...
- Limpieza y desinfección
de equipos.
- Preinstalación
en obra y conductos de fibra.
-Instalación y revisión de calderas de agua caliente sanitaria y mixtas.
-Climatización y mantenimiento de piscinas.
- Energía solar
para ACS, calefacción...
Placas solares fotovoltaicas.
-Sistemas de purificación de aire:
deshumidificadores, generadores de ozono, etc.
-Reparaciones.
- OTROS SERVICIOS COMPLEMENTARIOS: Mantenimiento de jardines, fachadas...

Instaladores certificados
El RITE es el Reglamento de Instalaciones Térmicas en Edificios. Se ocupa de regular el mantenimiento de las instalaciones de climatización y generación de agua caliente sanitaria.
El reglamento marca las condiciones mínimas que tienen que cumplir las instalaciones térmicas, con el objetivo de maximizar la eficiencia energética en pro de un uso racional de la energía.
El carnet profesional
de instalaciones térmicas en edificios es un documento a través del cual la autoridad competente autoriza a la persona titular del carnet para desempeñar las actividades de ejecución y mantenimiento de instalaciones térmicas en edificios.
¿POR QUÉ ELEGIR UN INSTALADOR PROFESIONAL?A continuación te detallamos algunos de los motivos por los que confiar en un instalador profesional sale rentable:
Experiencia y conocimiento
Los instaladores de climatización son profesionales formados específicamente para instalar equipos de aire acondicionado y calefacción y, por supuesto, sistemas de control. Nadie conoce mejor que ellos sus entresijos y su funcionamiento.
Servicio eficaz
La importancia de una buena instalación resulta clave en este sector. No os podéis imaginar en cuántas ocasiones los problemas con un equipo de aire acondicionado o calefacción son el resultado de una mala instalación.
Para ahorrarnos quebraderos de cabeza, lo ideal es contar desde el principio con manos expertas. Solo los instaladores certificados pueden ofrecernos las garantías de un profesional.
Asesoramiento personalizado
Los instaladores están siempre a la orden del día en soluciones de climatización. Además, saben perfectamente que cada casa, oficina, local o instalación en general es un mundo. Por eso, nadie te asesorará mejor que ellos sobre la opción que mejor se ajusta a tus necesidades y a tu bolsillo.
Mantenimiento de la instalación
Dejar en manos del instalador el mantenimiento es sinónimo de garantía. Se ocupan de poner a punto tu sistema siempre que sea necesario para que la vida útil de la máquina se prolongue el máximo tiempo posible.
Siempre podrás contactar con tu instalador en caso de que algo falle. Están acostumbrados a tratar a diario con todo tipo de equipos y te ofrecerán una respuesta precisa y eficaz.
Cuestión de normativa y seguridad
En España, existe una normativa específica (Real Decreto 115/2017) que regula la comercialización y manipulación de gases fluorados, la certificación de los profesionales que los utilizan y también los requisitos técnicos de las instalaciones.
Según esta normativa, para garantizar siempre la máxima seguridad, solo el personal certificado ha de manipular estos tipos de materiales y componentes.























